Multifamily
From affordable housing developments to market-rate apartments, our multifamily line empowers developers to build faster, smarter, and at scale. Our volumetric modular expertise accelerates project timelines while maintaining strict quality control, helping you meet housing demand without sacrificing design, sustainability, or cost efficiency.
Emmons Architecture
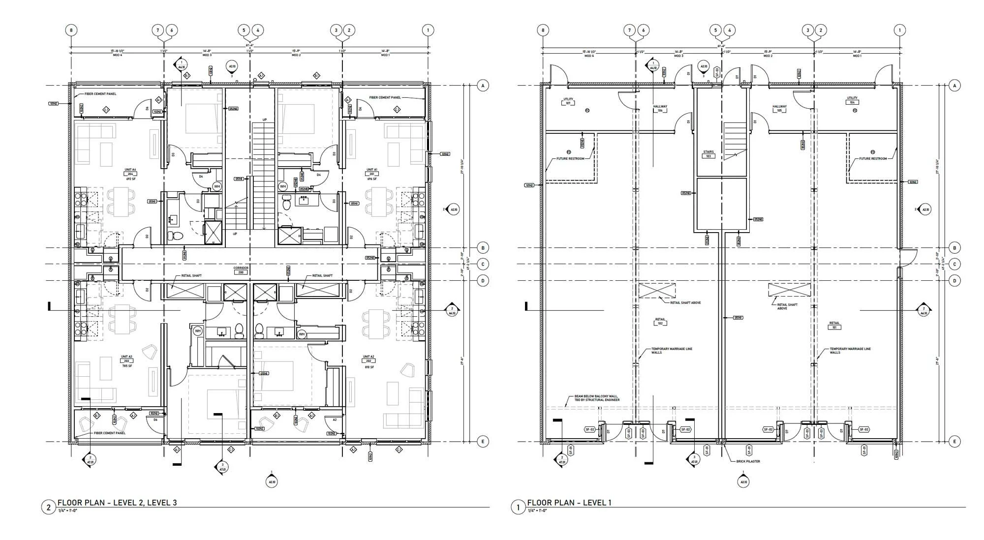
ImHomeToo Apartment 1
ImHomeToo Apt.1 by Emmons Design: studio to 3 bedroom apartments; affordable housing
Four-story modular apartment complex that features chase walls built into the modules. The design reduces site work and streamlines utility connections for faster project delivery. Circulation corridors are also constructed in the factory, ensuring precise quality control and minimizing on-site construction time. With Type A accessibility integrated throughout, this apartment supports inclusive living for all residents.
Polyphon Architecture & Design
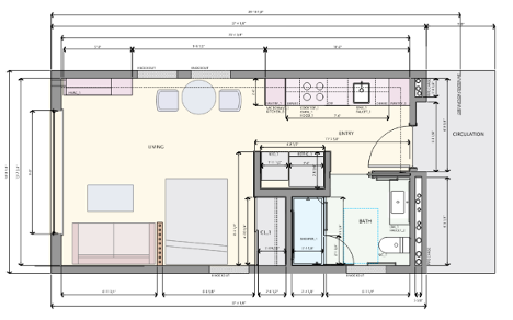
Paul Edwards Building
(22) 1-bedroom apartments; common space included; affordable housing
The Paul Edwards Building is a three-story apartment complex designed to combine modern living with community connection. An open exterior stairway provides easy access to the residences, while two dedicated offices support on-site management and resident services. A spacious community room on the ground floor creates a central hub for gatherings, events, and shared activities.
ACID Architecture
Mixed use Prototype
Open commercial tenant improvement space on first floor with apartments above.
This mixed-use prototype addresses the wildfire devastation impacting rural communities across Oregon and the West. By incorporating materials and details that comply with commercial zoning requirements throughout the state, the design reflects the historic character of rural main streets. This approach enables communities to rebuild quickly while preserving the character and pride of what was lost.
Featuring retail space on the ground floor and eight one-bedroom units above, the design offers spacious apartment units with balconies, large living areas, and ample natural light. The adaptable material palette allows developers to mix and match materials, creating vibrant and diverse streetscapes.

Interested in Learning More?
Blazer builds wholesale and works through a network of trusted partners. Whether you’re looking for a quick, pre-designed plan or exploring a custom design solution, we’ll connect you with the right partner and help you determine the next steps.